Arte/Técnica

Poesia com Milhares de Tijolos

A arquitetura de Vilanova Artigas reelabora, segundo a potencialidade e o contexto brasileiros das décadas de 1940 a 1960, as tendências das vanguardas internacionais. De acordo com uma crítica estética e uma postura política humanista, desenvolve um estilo próprio, vigoroso e até hoje influente.

A produção do arquiteto – que abrange casas e edifícios residenciais, ginásios esportivos, escolas e conjuntos para habitação popular, entre outros – é caracterizada pela preocupação com os espaços de convivência, pelo uso da luz natural e de rampas – que possibilitam percursos fluidos, sem interrupções –, pela estrutura aparente e pela tentativa de integrar a obra à cidade – seja abrindo mão de grades, como no Edifício Louveira, seja permitindo vistas panorâmicas, como no estádio do Morumbi.

Para Artigas, arte e técnica dialogam no duplo significado da palavra desenho – a representação de uma realidade e a exposição de um desígnio. Um projeto nasce da convergência entre linguagens artísticas e tecnológicas. Como também disse o arquiteto, em 1973: “Admiro os poetas. O que eles dizem com duas palavras a gente tem que exprimir com milhares de tijolos”.

Compartilhe

Casinha (1)

Projeto da primeira casa que Artigas construiu para si e sua família, chamada "Casinha" | Imagem: Acervo da Família Artigas

Compartilhe

Casinha (2)

Projeto da primeira casa que Artigas construiu para si e sua família, chamada "Casinha" | Imagem: Acervo da Família Artigas

Compartilhe

Casinha (3)

Projeto da primeira casa que Artigas construiu para si e sua família, chamada "Casinha" | Imagem: Acervo da Família Artigas

Compartilhe

Casinha (4)

Projeto da primeira casa que Artigas construiu para si e sua família, chamada "Casinha" | Imagem: Acervo da Família Artigas

Compartilhe

Casinha (5)

Projeto da primeira casa que Artigas construiu para si e sua família, chamada "Casinha" | Imagem: Acervo da Família Artigas

Compartilhe

Casinha (6)

Projeto da primeira casa que Artigas construiu para si e sua família, chamada "Casinha" | Imagem: Acervo da Família Artigas

Compartilhe

Casinha (7)

Projeto da primeira casa que Artigas construiu para si e sua família, chamada "Casinha" | Imagem: Acervo da Família Artigas

Compartilhe

Casinha (8)

Projeto da primeira casa que Artigas construiu para si e sua família, chamada "Casinha" | Imagem: Acervo da Família Artigas

Compartilhe

Seção de vídeo

Casinha (1942) e Casa Vilanova Artigas (1949)

Marco Artigas é arquiteto formado pela Escola da Cidade e pós-graduado pela Universitat Politècnica de Catalunya, de Barcelona, na Espanha. Entre 2010 e 2014, integrou o escritório Piratininga Arquitetos Associados e participou dos projetos da Biblioteca Mário de Andrade, da Praça dos Museus, na Universidade de São Paulo (USP), e do Instituto de Tecnologia de Desenvolvimento Sustentável da Vale do Rio Doce, os dois últimos em colaboração com o também arquiteto Paulo Mendes da Rocha. Trabalhou no escritório Josep Ferrando Architecture, em Barcelona, e participou de estágio no Centro de Tecnologia da Rede Sarah, em Salvador (BA). Foi professor-assistente na Escola da Cidade para as turmas de primeiro ano em 2011 e 2012. Atualmente, está à frente do próprio escritório e coordena um curso livre de arquitetura paulistana.

Compartilhe

Edifício Louveira – 1946/1948 (1)

Projeto do Edifício Louveira | Imagem: Acervo da Família Artigas

Compartilhe

Edifício Louveira – 1946/1948 (2)

Projeto do Edifício Louveira | Imagem: Acervo da Família Artigas

Compartilhe

Edifício Louveira -1946/1948 (3)

Edifício Louveira em construção | Imagem: Acervo da Família Artigas

Compartilhe

Seção de vídeo

Edifício Louveira (1946/1948)

Álvaro Puntoni é arquiteto.

Compartilhe

Vestiários do Morumbi (1)

Projeto dos vestiários do Estádio do Morumbi | Imagem: Acervo da Família Artigas

Compartilhe

Vestiários do Morumbi (1)

Projeto dos vestiários do Estádio do Morumbi | Imagem: Acervo da Família Artigas

Compartilhe

Vestiários do Morumbi (1)

Projeto dos vestiários do Estádio do Morumbi | Imagem: Acervo da Família Artigas

Compartilhe

Vestiários do Morumbi (1)

Projeto dos vestiários do Estádio do Morumbi | Imagem: Acervo da Família Artigas

Compartilhe

Estádio do Morumbi (1)

Terraplanagem para construção do Estádio do Morumbi | Imagem: Acervo da Família Artigas

Compartilhe

Estádio do Morumbi (2)

Estádio do Morumbi em construção | Imagem: Acervo da Família Artigas

Compartilhe

Estádio do Morumbi (3)

Estádio do Morumbi em construção | Imagem: Acervo da Família Artigas

Compartilhe

Seção de vídeo

Estádio e Vestiários do Morumbi (1952/1970)

Álvaro Puntoni é arquiteto.

Shundi Iwamizu é diretor do escritório Shundi Iwamizu Arquitetos Associados e professor da Escola da Cidade. Bacharel e mestre pela Faculdade de Arquitetura e Urbanismo da Universidade de São Paulo (FAU/USP), em sua dissertação falou sobre a Estação Rodoviária de Jaú, obra de Artigas.

Compartilhe

Seção de vídeo

Casa dos Triângulos (1958)

Ruy Ohtake é arquiteto e designer de móveis. Foi aluno de Artigas e formou-se pela Faculdade de Arquitetura e Urbanismo da Universidade de São Paulo (FAU/USP). Produziu o plano de adequação do Estádio do Morumbi – projeto feito por Artigas – aos critérios do Mundial de Futebol de 2014.

Shundi Iwamizu é diretor do escritório Shundi Iwamizu Arquitetos Associados e professor da Escola da Cidade. Bacharel e mestre pela Faculdade de Arquitetura e Urbanismo da Universidade de São Paulo (FAU/USP), em sua dissertação falou sobre a Estação Rodoviária de Jaú, obra de Artigas.

Compartilhe

Seção de vídeo

Ginásio de Guarulhos (1960)

Ruy Ohtake é arquiteto e designer de móveis. Foi aluno de Artigas e formou-se pela Faculdade de Arquitetura e Urbanismo da Universidade de São Paulo (FAU/USP). Produziu o plano de adequação do Estádio do Morumbi – projeto feito por Artigas – aos critérios do Mundial de Futebol de 2014.

Compartilhe

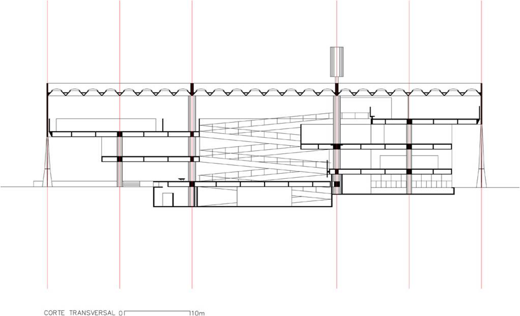
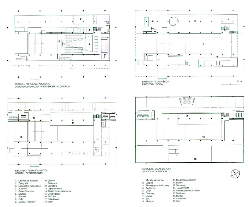
FAU/USP (1)

Projeto da Faculdade de Arquitetura e Urbanismo da USP | Imagem: Acervo da Família Artigas

Compartilhe

FAU/USP (2)

Projeto da Faculdade de Arquitetura e Urbanismo da USP | Imagem: Acervo da Família Artigas

Compartilhe

FAU/USP (3)

Projeto da Faculdade de Arquitetura e Urbanismo da USP | Imagem: Acervo da Família Artigas

Compartilhe

FAU/USP (4)

Projeto da Faculdade de Arquitetura e Urbanismo da USP | Imagem: Acervo da Família Artigas

Compartilhe

FAU/USP (5)

Projeto da Faculdade de Arquitetura e Urbanismo da USP | Imagem: Acervo da Família Artigas

Compartilhe

FAU/USP (6)

Projeto da Faculdade de Arquitetura e Urbanismo da USP | Imagem: Acervo da Família Artigas

Compartilhe

FAU/USP (7)

Projeto da Faculdade de Arquitetura e Urbanismo da USP | Imagem: Acervo da Família Artigas

Compartilhe

FAU/USP (8)

Projeto da Faculdade de Arquitetura e Urbanismo da USP | Imagem: Acervo da Família Artigas

Compartilhe

FAU/USP (9)

Faculdade de Arquitetura e Urbanismo da USP | Imagem: Acervo da Família Artigas

Compartilhe

FAU/USP (10)

Faculdade de Arquitetura e Urbanismo da USP, em construção | Imagem: Acervo da Família Artigas

Compartilhe

FAU/USP (11)

Alunos reunidos na Faculdade de Arquitetura e Urbanismo da USP | Imagem: Acervo da Família Artigas

Compartilhe

Seção de vídeo

Casa Elza Berquó (1967)

Ruy Ohtake é arquiteto e designer de móveis. Foi aluno de Artigas e formou-se pela Faculdade de Arquitetura e Urbanismo da Universidade de São Paulo (FAU/USP). Produziu o plano de adequação do Estádio do Morumbi – projeto feito por Artigas – aos critérios do Mundial de Futebol de 2014.

Compartilhe

Seção de vídeo

FAU/USP (1961/1969)

Álvaro Puntoni é arquiteto.

Eduardo de Jesus Rodrigues é bacharel, mestre e doutor em arquitetura e urbanismo, além de livre-docente, pela Universidade de São Paulo (USP), onde leciona. Trabalhou no escritório de Artigas durante quatro anos.

Shundi Iwamizu é diretor do escritório Shundi Iwamizu Arquitetos Associados e professor da Escola da Cidade. Bacharel e mestre pela Faculdade de Arquitetura e Urbanismo da Universidade de São Paulo (FAU/USP), em sua dissertação falou sobre a Estação Rodoviária de Jaú, obra de Artigas.

Compartilhe

Seção de vídeo

CECAP (1967)

Eduardo de Jesus Rodrigues é bacharel, mestre e doutor em arquitetura e urbanismo, além de livre-docente, pela Universidade de São Paulo (USP), onde leciona. Trabalhou no escritório de Artigas durante quatro anos.

José Armênio de Britto Cruz foi aluno de Artigas na Faculdade de Arquitetura e Urbanismo da Universidade de São Paulo (FAU/USP), onde se formou. É sócio do escritório Piratininga e presidente do Instituto de Arquitetos do Brasil, seção São Paulo (IAB/SP), órgão do qual seu antigo professor foi um dos fundadores.

Compartilhe

Rodoviária de Jaú (1)

Projeto da Rodoviária de Jaú | Imagem: Acervo da Família Artigas

Compartilhe

Rodoviária de Jaú (2)

Projeto da Rodoviária de Jaú | Imagem: Acervo da Família Artigas

Compartilhe

Rodoviária de Jaú (3)

Projeto da Rodoviária de Jaú | Imagem: Acervo da Família Artigas

Compartilhe

Rodoviária de Jaú (4)

Projeto da Rodoviária de Jaú | Imagem: Acervo da Família Artigas

Compartilhe

Rodoviária de Jaú (5)

Projeto da Rodoviária de Jaú | Imagem: Acervo da Família Artigas

Compartilhe

Rodoviária de Jaú (6)

Projeto da Rodoviária de Jaú | Imagem: Acervo da Família Artigas

Compartilhe

Rodoviária de Jaú (7)

Rodoviária de Jaú em construção | Imagem: Acervo da Família Artigas

Compartilhe

Seção de vídeo

Rodoviária de Jaú (1973)

José Armênio de Britto Cruz foi aluno de Artigas na Faculdade de Arquitetura e Urbanismo da Universidade de São Paulo (FAU/USP), onde se formou. É sócio do escritório Piratininga e presidente do Instituto de Arquitetos do Brasil, seção São Paulo (IAB/SP), órgão do qual seu antigo professor foi um dos fundadores.

Pedro Paulo de Melo Saraiva é arquiteto, urbanista e professor. Formado pela Universidade Presbiteriana Mackenzie, foi convidado por Artigas para trabalhar na Faculdade de Arquitetura e Urbanismo da Universidade de São Paulo (FAU/USP), como seu assistente, em 1962. Os dois tornaram-se amigos e voltariam a colaborar em projetos, como no plano de reurbanização e readequação do Anhangabaú, não executado.